- Главная
- Комплектующие
- Точные измерения и контроль процесса обработки
- Датчики для станков
- Датчик для контроля деталей TS 248 HEIDENHAIN
Датчик для контроля деталей TS 248 HEIDENHAIN
Фрезерные, сверлильные и расточные станки с ручной сменой инструмента, токарные и шлифовальные станки.
Проводная передача сигнала.
Повторяемость <1,0 мкм.
ООО «Эффективное производство» - официальный партнер компании HEIDENHAIN в России
Для измерения заготовок непосредственно на станке Heidenhain предлагает датчики серии TS. Контактные измерительные датчики помогают уменьшить время наладки, увеличить время эксплуатации станка и повысить точность изготовляемых деталей. Функции наладки, измерения и контроля выполняются в ручном или в автоматическом режиме, при помощи циклов измерения.
В зажимной патрон датчик устанавливается вручную или при помощи автоматической смены инструмента. В зависимости от циклов измерения системы ЧПУ, датчик может в автоматическом или в ручном режиме выполнять следующие функции:
- выверять заготовки;
- устанавливать точки привязки;
- измерять заготовки;
- оцифровывать и контролировать 3D формы.
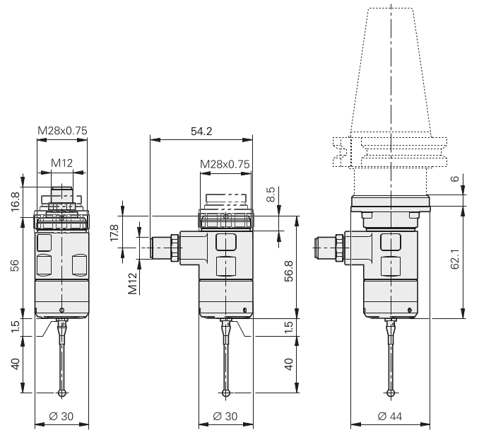
TS 248 - датчик нового поколения с осевым или радиальным кабельным подключением, с пониженной силой отклонения для передачи сигналов для станков с ручной сменой инструмента, а также для шлифовальных станков и токарных станков.
| Точность датчика | ≤ ±5 мкм при использовании стандартного щупа T404 |
| Повторяемость многократные измерения в одном направлении |
2σ ≤ 1 мкм при скорости измерения 1 м/мин Стандартные значения: 2σ ≤ 1 мкм при скорости измерения 3 м/мин 2σ ≤ 4 мкм при скорости измерения 5 м/мин |
| Отклонение щупа датчика | ≤ 5 мм во всех направлениях (с длиной щупа 40 мм) |
| Усилие касания | осевое: прибл. 4 Н радиальное: прибл. 0,5 Н |
| Скорость измерения | ≤ 5 м/мин |
| Защита от столкновений | нет |
| Крепление | конический хвостовик (круглый фланец) М28 х 0,75 наружная резьба муфта М22 х 1 наружная резьба |
| Напряжение питания без нагрузки |
DC от 15 до 30 В / ≤100 мA |
| Выходные сигналы | коммутационный сигнал S (сигнал прямоугольной формы и его инверсный сигнал) дополнительный беспотенциальный сигнал "Триггер" |
| Уровень сигнала | HTL UH ≤ 20 В при –IH ≤ 20 мA UL ≤ 2,8 В при IL ≤ 20 мA при номинальном напряжении 24 В |
| Передача сигнала | кабельная |
| Длина кабеля | ≤ 25 м |
| Электрическое подключение | фланцевый разъем M12, 8-pin, осевой или радиальный |
| Класс защиты | IP67 (EN 60529) |
| Рабочая температура | от +10 °C до +40 °C |
| Температура хранения | от -20 °C до +70 °C |
| Вес без конического хвостовика | прибл. 0,15 кг |
Для заказов на сумму более 50 000 руб. доставка включена в стоимость.
В других случаях рассчитывается исходя из веса отправления и региона доставки.
Возможна доставка любой удобной для заказчика ТК
Сроки доставки от 1 до 3 дней по Центральному региону
По умолчанию мы работаем с двумя курьерскими компаниями:
Major — российская компания, занимающаяся продажей автомобилей и перевозками грузов. Крупнейший, наряду с «Рольфом», автодилер страны.
DPDgroup — международная служба экспресс-доставки. В среднем ежедневно доставляет более 5 миллионов посылок. Работает под торговой марками DPD.
Это наши проверенные партнеры. Однако если вы предпочитаете работать с другой курьерской службой, у нас нет ограничений. Просто сообщите нам об этом. Мы согласуем все условия и отправим заказ с полным комплектом сопутствующей документации.
Как оплатить?
Оплата принимается по безналичному расчету. После согласования заказа мы выставляем счет на оплату. Заказ считается оплаченным после поступления суммы заказа на расчетный счет ООО «Эффективное производство».
Как получить?
География доставки — вся Россия. При перевозке грузы подлежат страхованию. Обычно доставка входит в стоимость продукции.
Приобретая продукцию у нас, вы можете быть уверены, что получаете оригинальное сертифицированное оборудование, комплектующие и оснастку.
На весь представленный ассортимент распространяется гарантия завода-изготовителя. Для каждого конкретного изделия производитель устанавливает определенный гарантийный срок. Обычно он составляет 12-36 месяцев.
Согласно п. 1 ст. 471 Гражданского кодекса РФ гарантийный срок на товар исчисляется с момента фактической передачи его покупателю.
При наступлении гарантийного случая и отсутствии следов некорректной эксплуатации, осуществляется замена неисправного оборудования в соответствии с Законом о защите прав потребителей.
Если утрата функциональности изделия связана с механическими повреждениями, попытками модификации или ремонта, нецелесообразным использованием, то компания ООО «Эффективное производство» не несет за это ответственности, а действие гарантийных обязательств прекращается.
Иногда мы сталкиваемся с ситуацией, когда подлинные запчасти работают некорректно, т.к. нарушена технология их установки. В таком случае наши инженеры удаленно помогают клиентам наладить эксплуатацию.



































